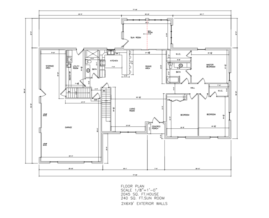
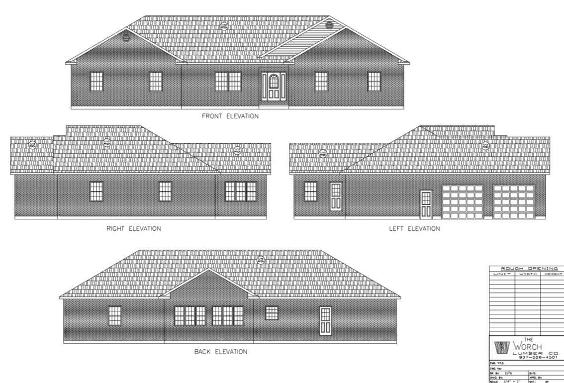
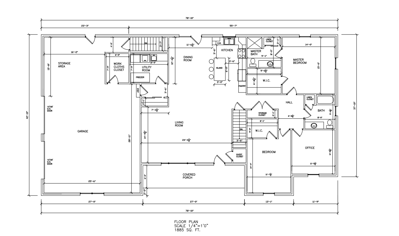
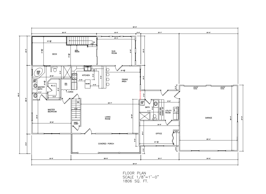
RESIDENTIAL RANCH